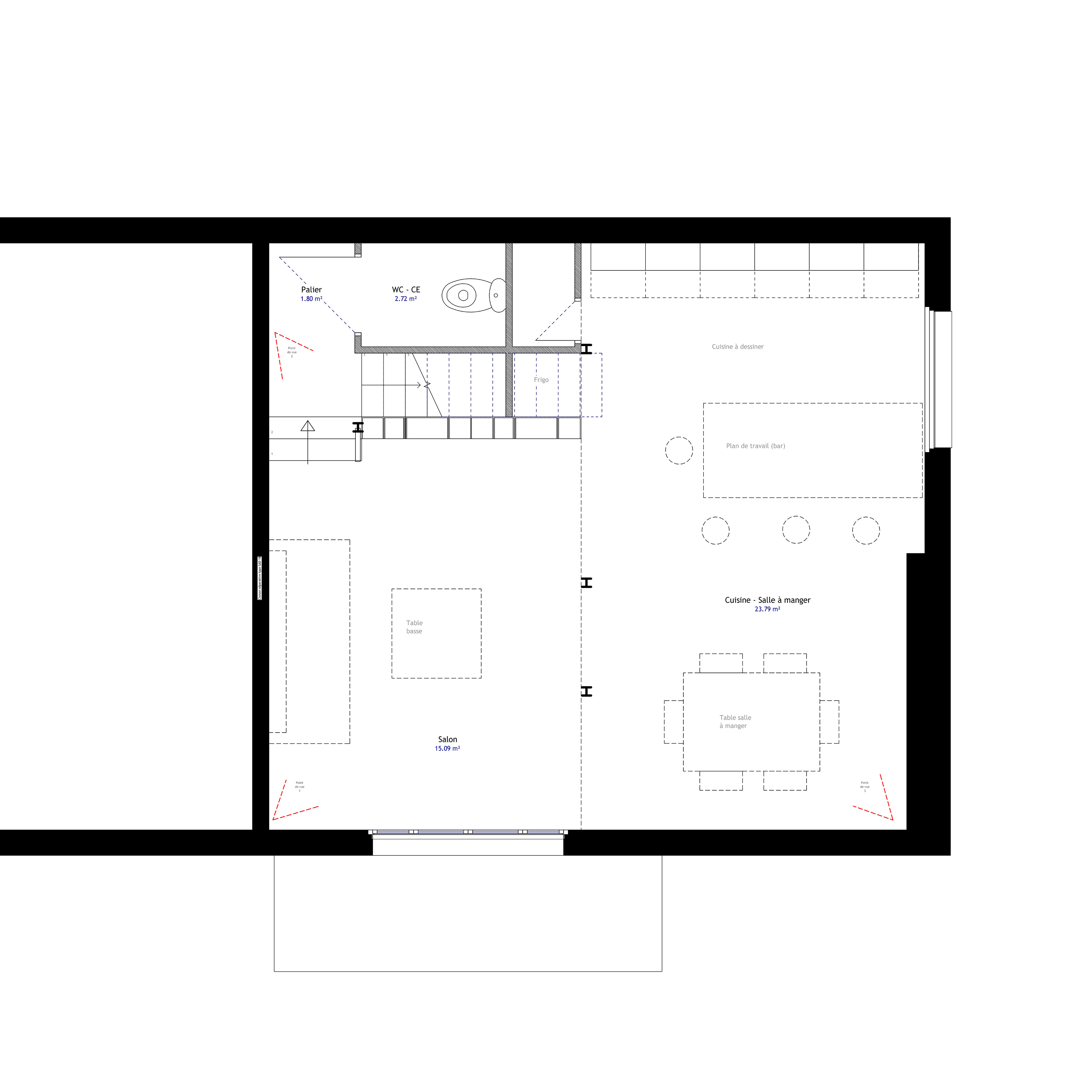
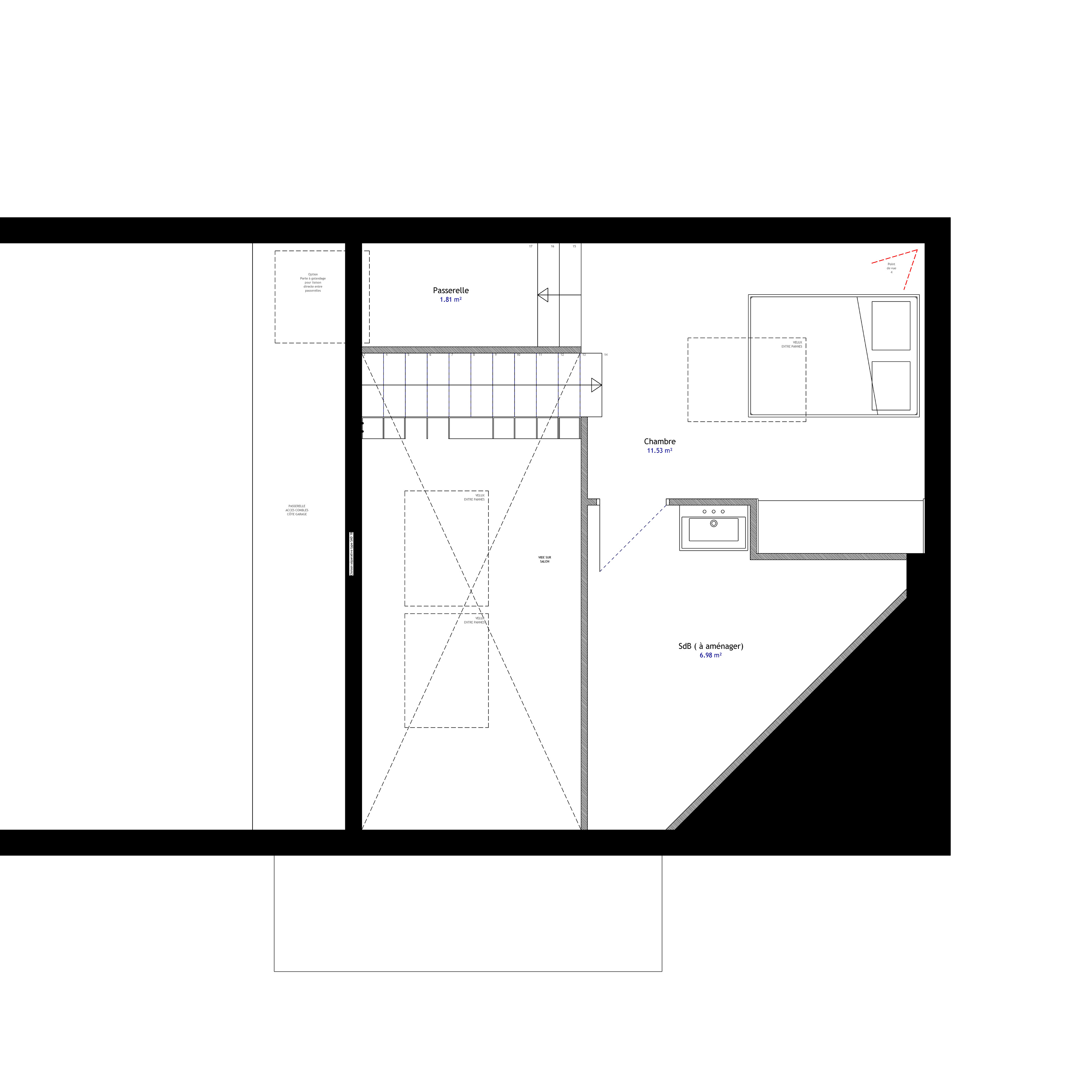
L'objet de la commande était de faire l'étude en esquisse + de l'aménagement d'un loft dans une partie d'un grand garage.
Ce site utilise des cookies non essentiels pour mesurer l’audience et améliorer votre expérience. Vous pouvez tout refuser ou tout accepter.
AccepterRefuser